Apt A2 - Apartments for Sale
Go to content

Apt A2 - Apartments for Sale

Skip menu
Skip menu
Solitaire Court
Apartment
A2
Solitairecourt Qwara A2
This Luxury Apartments with Panoramic Views - For sale
Discover this spacious apartment  boasting breathtaking views across a large part of the island. Ideally  located just an 8-minute walk from the lively Buggiba Square and the  vibrant Qwara promenade, with the family-friendly Salina Park directly  opposite. A perfect balance of tranquillity and convenience.

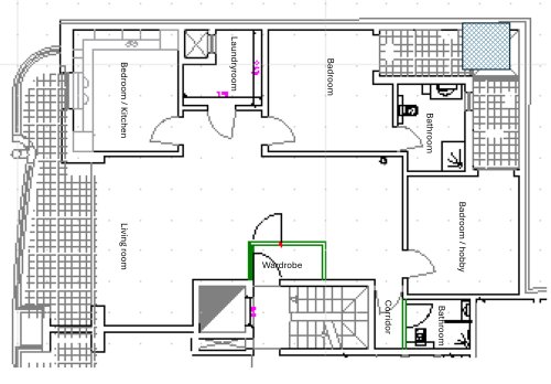
The apartment offers each a bright living room with balcony, three generous bedrooms and a modern bathrooms and much more.

The  apartment offers a bright living room with balcony, three generous  bedrooms and a modern bathrooms. The garden gives a nice effect in two  bedrooms. One of the bedrooms is currently used as a kitchen, but thanks  to smart planning, the kitchen can easily be relocated to the living  room. The walls indicated in green on the layout are made of plaster.

This  home is designed not only for comfort but also for the future. It  features an energy-saving ventilation system with heat and cooling  recovery and clean air in the house, Preparing for a solar boiler on the  roof, insulated walls and double glazing. The deep front balcony keeps  out the sun in summer while letting it in during winter – ensuring an  optimal and energy-efficient indoor climate. Every living space is  equipped with air conditioning, and the apartment benefits from an  abundance of power sockets and lighting points.
Approximate dimensions
 
Internal area:        
External area:      
 
Balcony                  
Wardrobe / entrance  
Living room:   
Bedroom:     
Ensuite  
Garden
Kitchen / bedroom:   
Hobby / bedroom:   
Hallway:   
Badhroom     
Laundryroom  


125 m²
27 m²
 
877 x 239 cm
114 x 224 cm
994 x 548 / 394 cm
472 x 393 cm
215 x 280 cm
436 / 453 x 149 cm
390 x 309 cm
380 x 358 cm
217 x 90 cm
203 x 155 cm
242 x 256 cm
Info J.intermedio@gmail.com
Back to content